Sold

Displaying: of 1

Agent Details

Greg Wild

Share

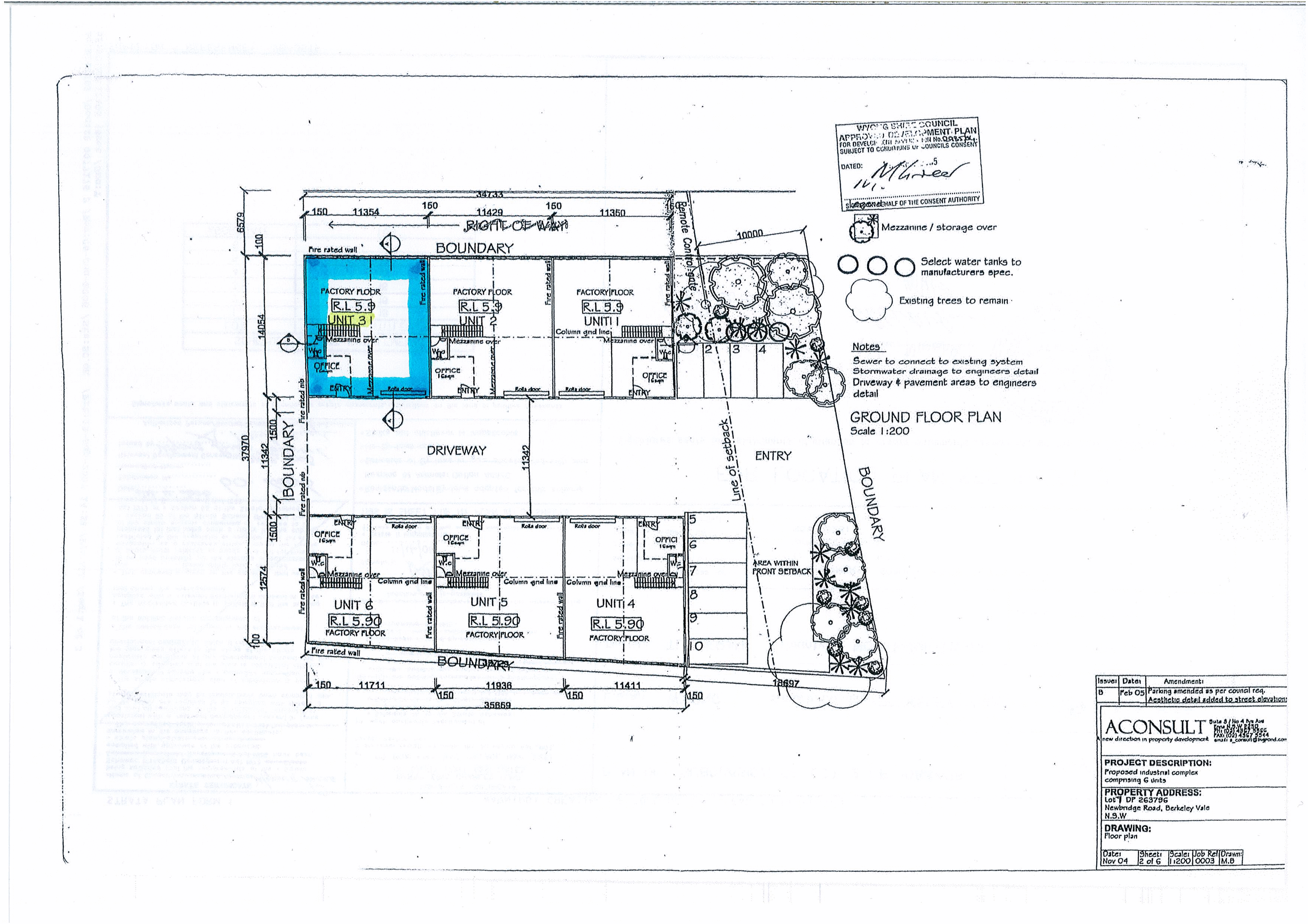
BERKELEY VALE MODERN FACTORY

Sold

Unit 3 No 19 Newbridge Road, Berkeley Vale

Profile

Great Modern Factory in a small quality development of just six bays with excellent amenities.
Currently leased to a quality tenant to September 2022
Ground floor area is a very usable 162 sm plus 36 sm mezzanine.
High access power roller door plus shopfront entry.
Excellent security Call Greg Wild today 0412 911 171

* QUALITY TILT SLAB CONSTRUCTION
* HIGH ACCESS POWER ROLLER DOORS
* ADDITIONAL SHOPFRONT ACCESS
* EXCELLENT FACILITIES
* JUST SIX FACTORIES IN COMPLEX
* CENTRAL LOCATION
* LEASED TO SEPTEBER 2022
* RATES $1,058 P A
* STATA FEES $4,600 PA
* WATER $360 PA
* RETURNS $21,126.56 PA

Features

198 sqm approx.
Building Size
$4600 Yearly
Body Corporate Fees
1058 Annually
Rates
$360 Yearly
Water Rates

Send Enquiry

Your Details
Your Enquiry
  1. Please describe how we can be of assistance to you.

  2.  

    Would you like to join our mail list?

Submit